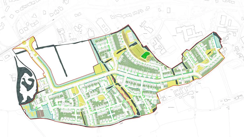
Trewhiddle Farm, St Austell

Trewhiddle Farm was a Reserved Matters Planning Application for Wainhomes, the site is located to the south-west of St Austell, Cornwall. A total of 460 new homes are proposed including 115 affordable dwellings that are compliant with M(4)2 and National Described Space Standards (NDSS).

The undulating topography made this a challenging project that required close collaboration with the wider design team, this resulted in a design that works with the existing landscape and incorporates tree lined streets as a focus.

This proposal achieved Planning Permission in October 2021