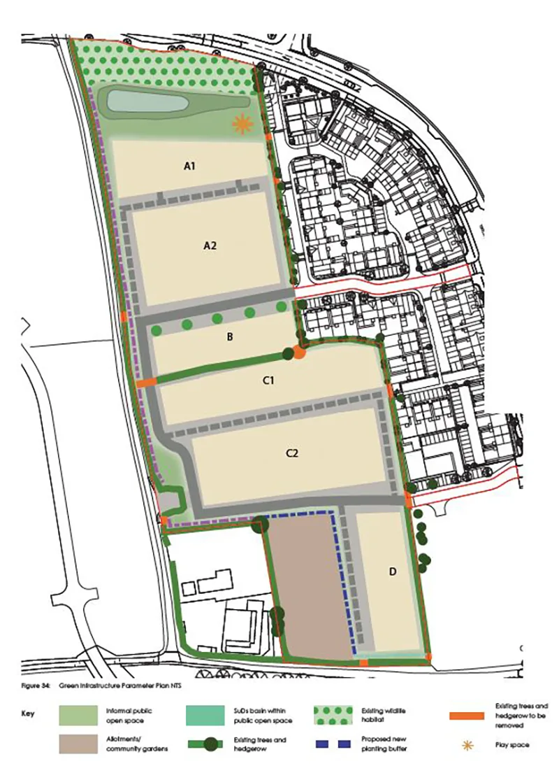
Tithebarn Green, Redhayes

This outline application for Eagle One proposed the extension of development that adjoins the urban extension at Redhayes, Exeter.

The constraints of the existing science park and approved residential developments next to the site, provided an opportunity to improve connectivity, enhance landscaping and provide improved POS.

The development framework created provides a high level of detail for future design teams to build on.