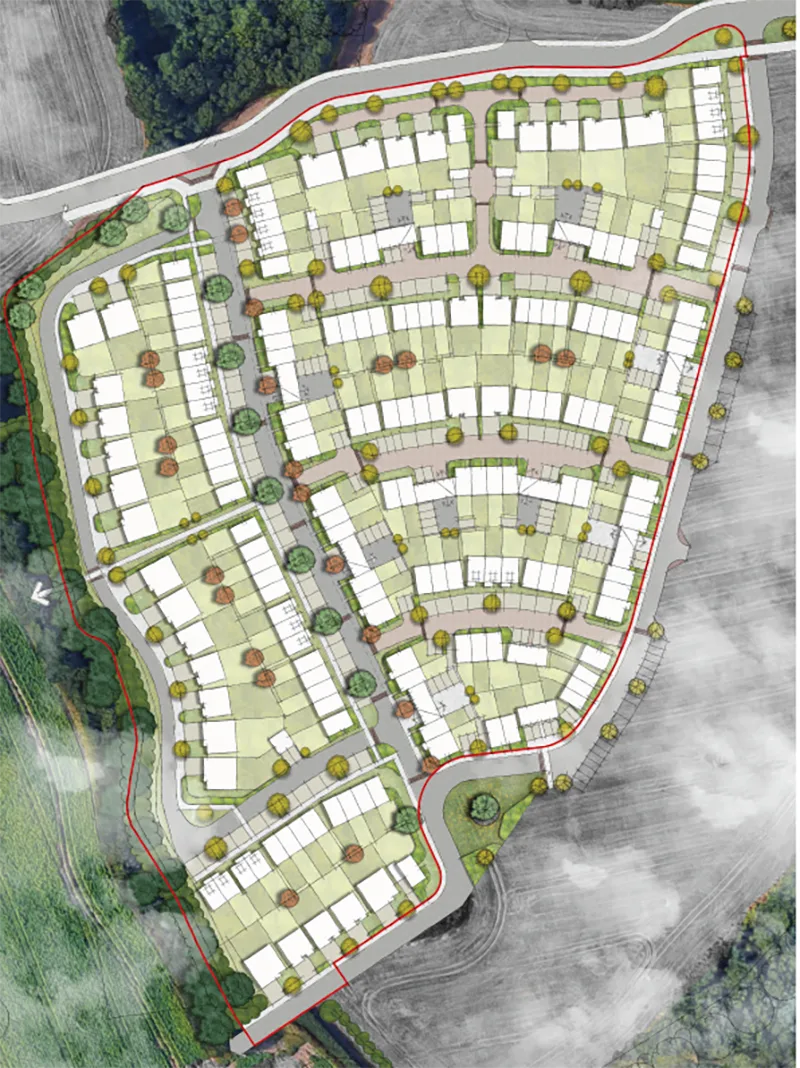
Saltash

A new sustainable community at Broadmoor Farm, West Saltash.

The strategic allocation will include a neighbourhood centre, a community hall, orchards, allotments and variety of play spaces as well as outdoor sports amenities and network of cycle/walking routes for use by existing local and new residents. This mix of green infrastructure will foster the creation of a truly sustainable extended community.