Pen Bethan, Falmouth

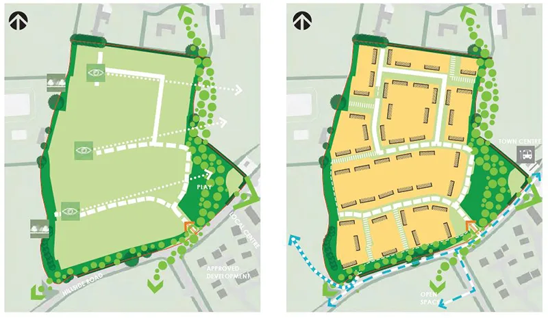
The Pen Bethan development is located to the north-west of Falmouth, to the south of the A39 and north to Hillhead Road. The site is within the administrative area of Budock Parish, part of Cornwall Council.

The proposed development will consist of 133 residential dwellings, to include 47 affordable homes, associated infrastructure, public open space and landscaping.

This proposal achieved Full Planning Permission in April 2021, for Barratt David Wilson Homes Exeter