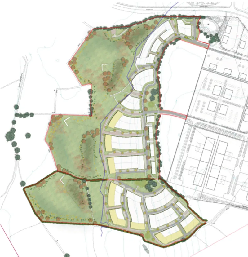
North Petherton, Somerset

Design proposals for 407 new homes on a highly sustainable site to be delivered as part of a large mixed use development, combining a wide range of local facilities and employment opportunities with an extensive country park.

The orientation of streets also enable views to and greenery from the country park to be pulled through into the block structure.