Nadder Lane, South Molton

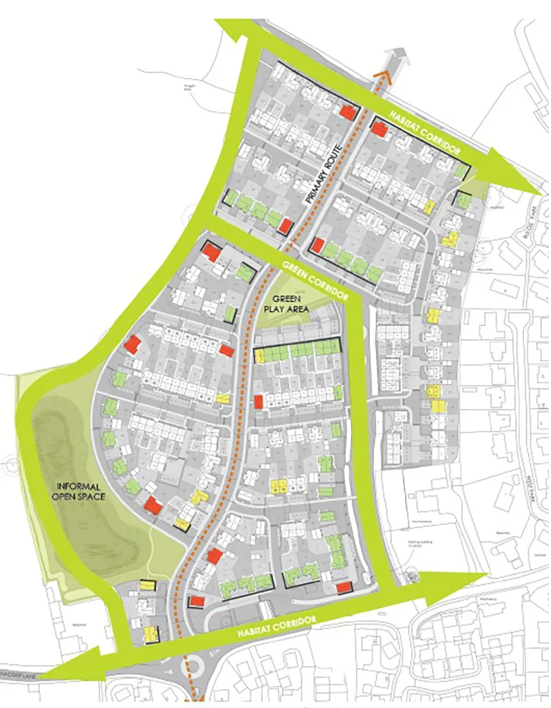
This project in North Devon and Torridge for Wainhomes comprised of 187 new dwellings, including 37 affordable dwellings.

The linear greenspaces and SuDS basin combine with the  existing hedgerows, to link with existing green infrastructure.

Areas of new open space are carefully integrated with sustainable drainage proposals, this to enable enhanced ecology and a balanced community to thrive.

This proposal achieved Full Planning Permission in October 2021.