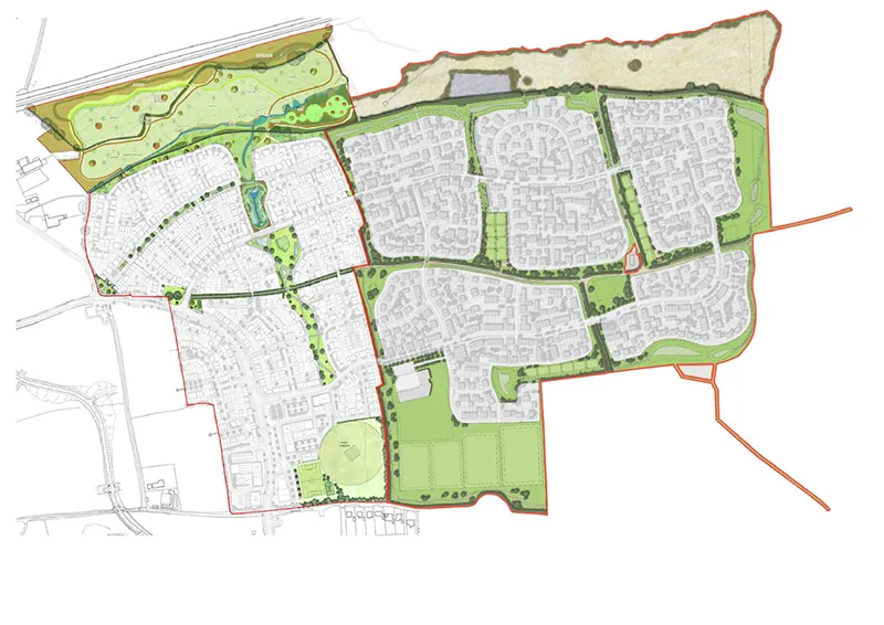
Masterplan, Tithebarn Green, Redhayes

The culmination of two large urban extensions combined to create this mixed use development. The scheme includes a primary school, an array of play spaces interconnected via a series of green corridors, 1,480 new homes and local centre.