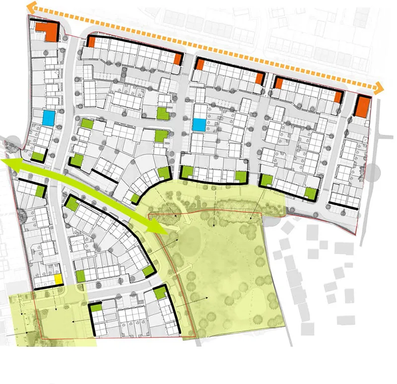
Cranbrook Phase 3A, north to former A30

This Galliford Try & Liverty project will create a vibrant, walkable and sustainable market town with a contemporary Devon character while recognising the imperative for reducing the impact of our lifestyles on the environment.

It will comprise 180 much-needed and high-quality homes, including 54 affordable dwellings and will enable:

  • The creation of a host of additional facilities including a new local centre and jobs, and an equipped children’s play area
  • The creation of new green corridors and habitats
  • The provision of a legible pedestrian link through the site
  • The integration of a cycle route alongside the MLR enhancing inter-connectivity with both Exeter and new nearby developments.

The Reserved Matters Application is approved (July 2018).

For this project we provided Urban Design, Architectural and Masterplanning expertise as part of a team of consultants.